【 マンション 】リノベーションマンション 事務所利用応相談可!(条件有り)
| 最寄駅 | 所在地 | 面積 | 築年月 | 価格 | 間取り |
|---|---|---|---|---|---|
東京メトロ日比谷線『仲御徒町』駅 徒歩 4分 | 東京都台東区台東4-29-15 | 専有/53.31㎡ | 1978年08月 | 6,498万円 | 2 LDK |
リノベーションマンション
事務所利用応相談可!(条件有り)
北西の角住戸のため通風・陽当り良好!
複数路線利用可能!
物件写真・間取り
物件概要
| 交通機関 | 東京メトロ日比谷線『仲御徒町』駅 徒歩 4分 JR山手線・京浜東北線『御徒町』駅 徒歩 6分 都営大江戸線・つくばエクスプレス『新御徒町』駅 徒歩 3分 |
|---|
| 所在地 | 東京都台東区台東4-29-15 |
|---|
| 物件名 | 上野永谷タウンプラザ |
|---|
| 価格 | 6,498万円 |
|---|
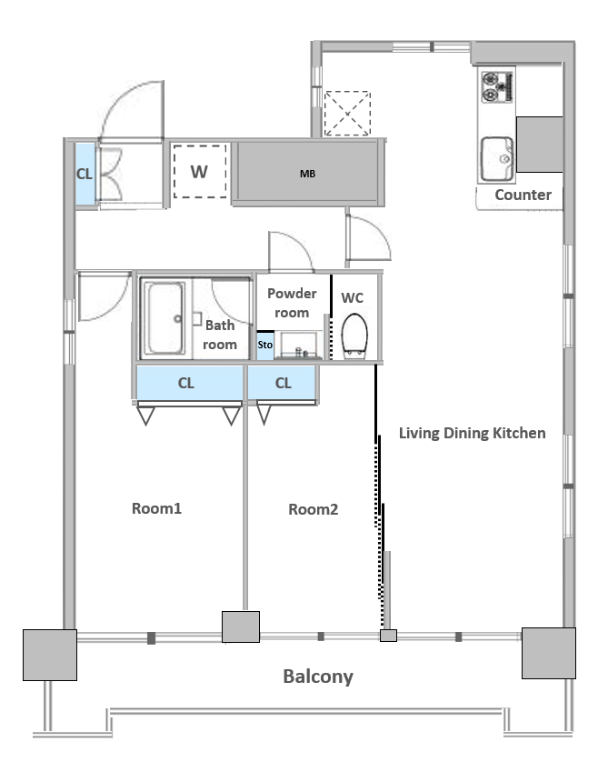
| 間取り | 2 LDK |
|---|
| 土地権利 | 所有権 |
|---|
| 専有面積 | 53.31㎡ |
|---|
| バルコニー方向 | 北側 |
|---|
| 建物構造 | SRC |
|---|
| 階 / 階数 | 地上10階建5階部分 |
|---|
| 築年月 | 1978年08月 |
|---|
| 用途地域 | 商業地域 |
|---|
| 現況 | 空室 |
|---|
| 総戸数 | 125戸 |
|---|
| 管理費 | 16,600円 |
|---|
| 管理方式 | 日勤 |
|---|
| 修繕積立金 | 9,960円 |
|---|
| 引渡し | 相談 |
|---|
| 取引態様 | 売主 |
|---|










