【 マンション 】リノベーションマンション ペット2匹まで飼育可能!(細則有り)
| 最寄駅 | 所在地 | 面積 | 築年月 | 価格 | 間取り |
|---|---|---|---|---|---|
JR京浜東北線『大森』駅 徒歩 4分 | 東京都大田区大森北1ー16-12 | 専有/73.91㎡ | 1974年06月 | 6,480万円 | 2 LDK |
リノベーションマンション
ペット2匹まで飼育可能!(細則有り)
オートロック・宅配ボックスあり!
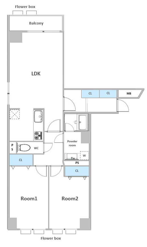
物件写真・間取り
物件概要
| 交通機関 | JR京浜東北線『大森』駅 徒歩 4分 京急本線『大森海岸』駅 徒歩 7分 |
|---|
| 所在地 | 東京都大田区大森北1ー16-12 |
|---|
| 物件名 | グリーンビレッジ大森 |
|---|
| 価格 | 6,480万円 |
|---|
| 間取り | 2 LDK |
|---|
| 土地権利 | 所有権 |
|---|
| 専有面積 | 73.91㎡ |
|---|
| バルコニー面積 | 4.48㎡ |
|---|
| バルコニー方向 | 北西側 |
|---|
| 建物構造 | SRC |
|---|
| 階 / 階数 | 地上13階建8階部分 |
|---|
| 築年月 | 1974年06月 |
|---|
| 用途地域 | 商業地域 |
|---|
| 現況 | 空室 |
|---|
| 総戸数 | 72戸 |
|---|
| 管理費 | 15,350円 |
|---|
| 管理方式 | 日勤 |
|---|
| 修繕積立金 | 19,440円 |
|---|
| 引渡し | 相談 |
|---|
| 取引態様 | 売主 |
|---|













